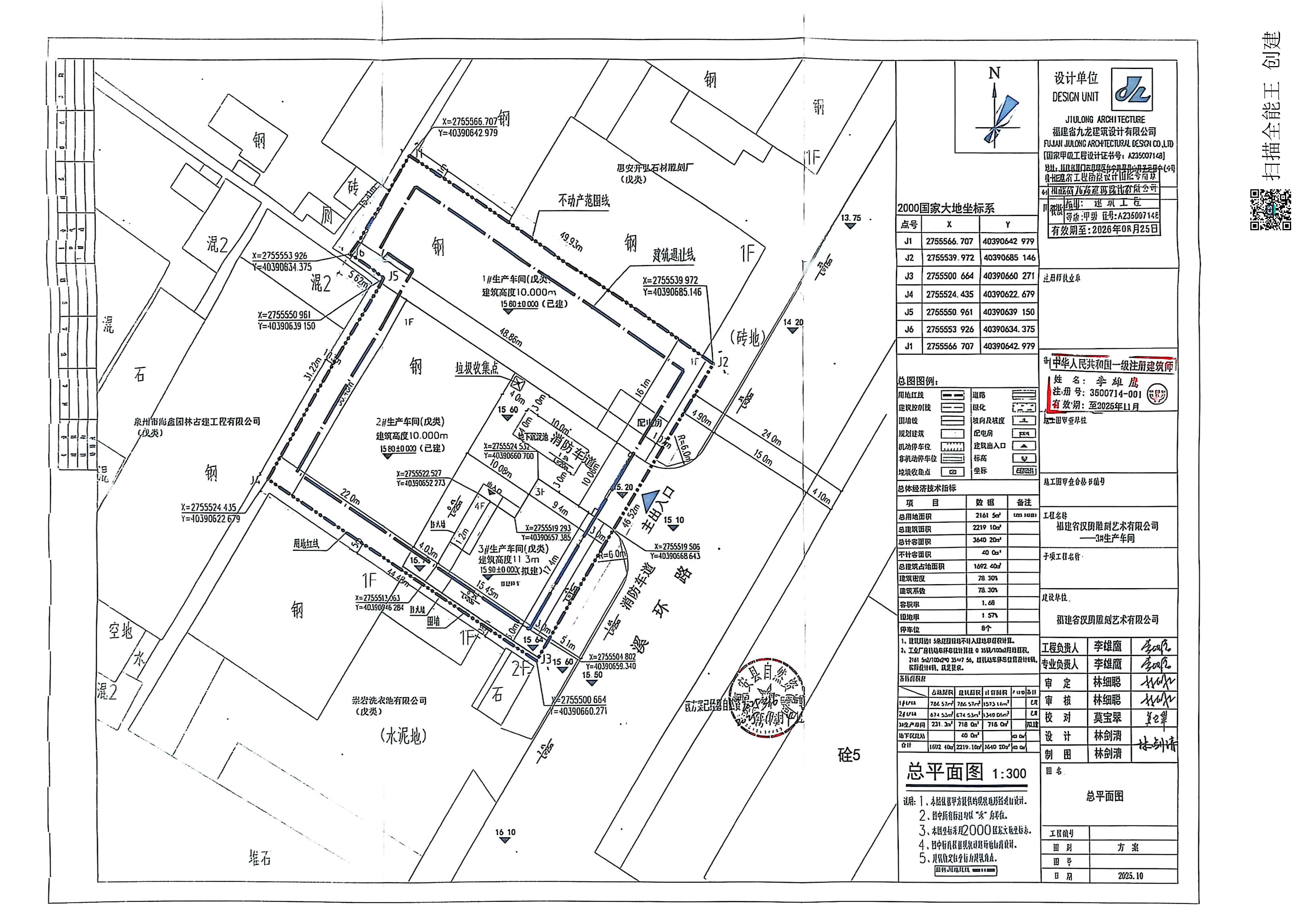
福建省汉腾雕刻艺术有限公司3#生产车间建设工程规划许可证批前公示
时间:2026-04-10 15:57 浏览量:
 

扫一扫在手机上查看当前页面